情報更新日:2025年04月08日/広告有効期限:なし
表示閲覧回数(過去30日間):115
お急ぎの方はお電話からお気軽にどうぞ!
096-366-5020 営業時間 / 月〜金 9:30〜17:30 定休日 / 土曜日・日曜日・祝祭日
>物件詳細情報
| 基本情報 | |
|---|---|
| 物件番号 | 10007807546 | 
| 店舗形態 | 事務所, 店舗, 店舗(飲食店可), 倉庫付事務所 | 
| オススメ業種 | 医療関係, 塾・学校・教育関係, 美容関係, 重飲食 | 
| 物件名 | 西区上熊本1丁目店舗 1F | 
| 物件の状態 | 空き | 
| 引越し時期 | 即 | 
| 契約形態と期間 | 普通 | 
| 所在地・交通 | |
|---|---|
| 所在地 | 熊本県熊本市西区上熊本1-10-21 | 
| 交 通1 | 熊本市電B系統県立体育館前駅 徒歩5分 | 
| 交 通2 | 熊本都市バス県立体育館北口 徒歩1分 | 
| 賃料 | |
|---|---|
| 賃 料 | 1,100,000円(税込) | 
| 敷 金 | 5ヶ月 | 
| 精算方法 | 実費 | 
| その他 | |
|---|---|
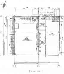
| 備考 | 2分割ご希望の場合はご相談下さい!!! 共有駐車場40台以上あり 上熊本駅から徒歩圏内 1階に位置する利便性の高い空間 多目的利用可能な広々80.14坪 教育・美容など様々な業態に対応可能 集客効果の高い立地 | 
| 建物 | |
|---|---|
| 建物構造 | 鉄骨造 | 
| 建物階建て | 地上2階 | 
| 施工年月 | 2011(平成23)年 09月 | 
| 募集物件の階数 | 地上 1階 | 
| 契約面積 | 264.93m2(80.14坪) | 
| 用途地域 | 準工業 | 
| 設備 | |
|---|---|
| 水道 | 公営 | 
| 下水道 | 公共下水 | 
| エレベータ | 無 | 
| エアコン | 無 | 
| トイレ | 無 | 
| 給湯室 | 無 | 
| 床仕様 | OAフロア | 
| セキュリティ | 無 | 
| 利用時間 | 24時間 | 
| シャッター | 有/自動 | 
| 照明設備 | 無 | 
| 内装業者指定 | 無 | 
| 駐車場 | |
|---|---|
| 状 況 | 空有無料 | 
| 取引情報 | |
|---|---|
| 取引態様 | 媒介 | 
| 客付 | 可 | 
この物件をチェックした人はこんな物件も見ています
- 南区の魅力的な1階店舗で、あなたの夢を形にしよう★
 
 熊本県熊本市南区並建町263
  110.85m2(33.53坪) 110.85m2(33.53坪)
  107,800円(税込) 107,800円(税込)
- 市内アクセス抜群、ビジネス展開を加速させる好立地
 
 熊本県熊本市西区春日7-19-2
  34.38m2(10.40坪) 34.38m2(10.40坪)
  88,000円(税込) 88,000円(税込)
- 幹線道路沿いの利便性 使いやすい16.20坪のスペース★
 
 熊本県熊本市中央区迎町1-4-14
  53.55m2(16.20坪) 53.55m2(16.20坪)
  66,000円(税込) 66,000円(税込)
- 1階店舗!!健軍商店街すぐそば!!
 
 熊本県熊本市東区若葉1-30-11
  30.23m2(9.14坪) 30.23m2(9.14坪)
  88,000円(税込) 88,000円(税込)
- 幹線道路沿いのオフィスビル!
 
 熊本県熊本市中央区妙体寺町-5-4
  198.48m2(60.04坪) 198.48m2(60.04坪)
  408,100円(税込) 408,100円(税込)
今日チェックした物件
お急ぎの方はお電話からお気軽にどうぞ!
096-366-5020 営業時間 / 月〜金 9:30〜17:30 定休日 / 土曜日・日曜日・祝祭日


 096-366-5020
096-366-5020











 
        
        
        
 
      

 
          




 096-366-5020
096-366-5020