情報更新日:2025年11月12日/広告有効期限:なし
表示閲覧回数(過去30日間):62
お急ぎの方はお電話からお気軽にどうぞ!
096-366-5020 営業時間 / 月〜金 9:30〜17:30 定休日 / 土曜日・日曜日・祝祭日
>物件詳細情報
| 基本情報 | |
|---|---|
| 物件番号 | 10007807125 |
| 店舗形態 | 事務所 |
| オススメ業種 | 事務所, 塾・学校・教育関係 |
| 物件名 | 村瀬海運ビル 701号室 |
| 物件の状態 | 空き |
| 引越し時期 | 相談 |
| 契約形態と期間 |
普通契約期間:2年間 |
| 所在地・交通 | |
|---|---|
| 所在地 | 熊本県熊本市中央区安政町-8-16 |
| 交 通1 | 熊本市電A系統水道町駅 徒歩2分 |
| 交 通2 | 熊本都市バス水道町 徒歩2分 |
| 賃料 | |
|---|---|
| 賃 料 | 144,515円(税込) |
| 敷 金 |
6ヶ月 |
| その他 | |
|---|---|
| 備考 | 水道町交差点そば、広さ16.63坪で最適な業務空間♪7階に位置し、静かな環境を提供☆★ ■駐車料1台22000円(空台数要確認) ■個別空調、光ファイバー、24時間利用可、土日祝日利用可 ■24時間セキュリティー、水道料無料 ■各フロアに給湯室・男女別共用トイレ(洋式・ウォシュレット付き)有 |
| 建物 | |
|---|---|
| 建物構造 | 鉄骨鉄筋コンクリート造 |
| 建物階建て |
地上8階 |
| 施工年月 | 1986(昭和61)年 02月 |
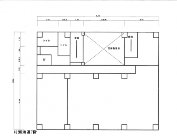
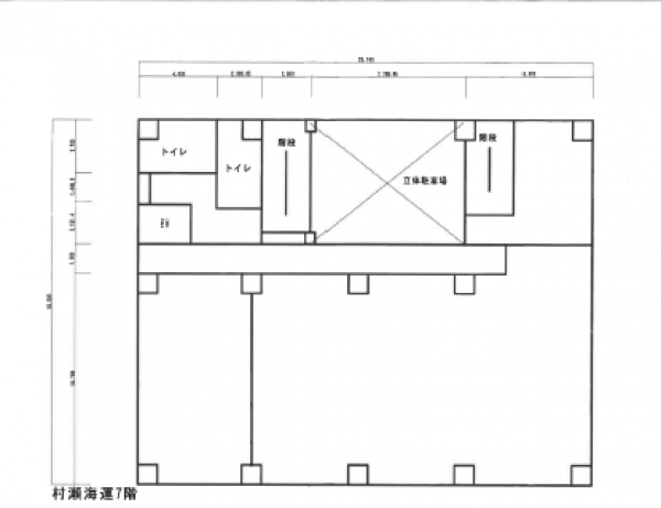
| 募集物件の階数 | 地上 7階 701号室 |
| 契約面積 | 54.98m2(16.63坪) |
| 用途地域 | 商業地域 |
| 駐車場 | |
|---|---|
| 状 況 | 空有 |
| 駐車料金 | 22,000円(税込) |
| 取引情報 | |
|---|---|
| 取引態様 | 媒介 |
| 客付 | 可 |
この物件をチェックした人はこんな物件も見ています
- 上熊本駅徒歩圏内でビジネスを格上げ!多目的利用可能な広々空間!

熊本県熊本市西区上熊本1-10-21
264.93m2(80.14坪)
1,100,000円(税込)
- 国体道路沿いの貸地!

熊本県熊本市中央区帯山7-23-52
144.71m2(43.77坪)
140,000円(税込)
- 黒髪6丁目貸地!賃料格安☆プレハブの設置相談可!

熊本県熊本市中央区黒髪6-4-19
596m2(180.29坪)
170,000円(税込)
- 幹線道路沿いの利便性 使いやすい16.20坪のスペース★

熊本県熊本市中央区迎町1-4-14
53.55m2(16.20坪)
66,000円(税込)
- 上通りの一等地でスモールショップに最適。新しいビジネスの第一歩に。

熊本県熊本市中央区上通町5-6
33.06m2(10.00坪)
88,000円(税込)
今日チェックした物件
- 八代の利便性抜群なロケーション★
-

熊本県八代市東片町436-7
196.21m2(59.35坪)
500,000円(税込)
- 熊本大学そば、夢の独立を叶える!路面・スケルトン飲食店舗
-

熊本県熊本市中央区黒髪2-31-20
69.42m2(21.00坪)
184,800円(税込)
- 熊本総合公園パークドーム横の2268坪の貸地です。資材置き場におすすめ!
-

熊本県熊本市東区平山町-3005-28
7,499.27m2(2,268.53坪)
2,500,000円(税込)
- アクセス抜群の一棟貸が、あなたの夢をサポートします。グリストラップ設置済み!今すぐ始められる理想の飲食向け物件
-

熊本県熊本市中央区九品寺2-3-2
72.70m2(21.99坪)
275,000円(税込)
お急ぎの方はお電話からお気軽にどうぞ!
096-366-5020 営業時間 / 月〜金 9:30〜17:30 定休日 / 土曜日・日曜日・祝祭日


096-366-5020
















096-366-5020