情報更新日:2025年08月26日/広告有効期限:なし
表示閲覧回数(過去30日間):34
お急ぎの方はお電話からお気軽にどうぞ!
096-366-5020 営業時間 / 月〜金 9:30〜17:30 定休日 / 土曜日・日曜日・祝祭日
>物件詳細情報
| 基本情報 | |
|---|---|
| 物件番号 | 10007808147 |
| 店舗形態 | 事務所 |
| オススメ業種 | 事務所 |
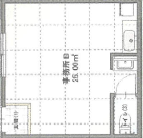
| 物件名 | HRK川辺事務所B号室 |
| 物件の状態 | 空き |
| 引越し時期 | 相談 |
| 契約形態と期間 |
普通契約期間:3年間 |
| 所在地・交通 | |
|---|---|
| 所在地 | 熊本県菊池市旭志川辺-1168-17 |
| 交 通1 | 豊肥本線原水駅 徒歩45分 |
| 交 通2 | - |
| 賃料 | |
|---|---|
| 賃 料 | 85,800円(税込) |
| 敷 金 |
2ヶ月 |
| 礼 金 | 1ヶ月 |
| その他 | |
|---|---|
| 備考 | 車2台駐車可能 外に充電システムあり 効率的な空間設計の15.13坪 高い利便性:TSMCまで車で7分 新築だからこその快適さ 優れた地域ビジネスアクセス |
| 建物 | |
|---|---|
| 建物構造 | 木造 |
| 建物階建て |
地上1階 |
| 施工年月 | 2024(令和6)年 11月 |
| 募集物件の階数 | 地上 1階 B号室 |
| 契約面積 | 25m2(7.56坪) |
| 用途地域 | 指定無 |
| 駐車場 | |
|---|---|
| 状 況 | 近隣 |
| 空き台数 | 2台 |
| 取引情報 | |
|---|---|
| 取引態様 | 媒介 |
| 客付 | 不可 |
この物件をチェックした人はこんな物件も見ています
- 上熊本駅徒歩圏内でビジネスを格上げ!多目的利用可能な広々空間!

熊本県熊本市西区上熊本1-10-21
264.93m2(80.14坪)
1,100,000円(税込)
- 国体道路沿いの貸地!

熊本県熊本市中央区帯山7-23-52
144.71m2(43.77坪)
140,000円(税込)
- 黒髪6丁目貸地!賃料格安☆プレハブの設置相談可!

熊本県熊本市中央区黒髪6-4-19
596m2(180.29坪)
170,000円(税込)
- 南区の魅力的な1階店舗で、あなたの夢を形にしよう★

熊本県熊本市南区並建町263
110.85m2(33.53坪)
107,800円(税込)
- 御船町中心エリア!アクセス良好な1階路面店舗。物販・事務所に最適なゆとりの44坪♪

熊本県上益城郡御船町辺田見-411-1
148.50m2(44.92坪)
165,000円(税込)
今日チェックした物件
お急ぎの方はお電話からお気軽にどうぞ!
096-366-5020 営業時間 / 月〜金 9:30〜17:30 定休日 / 土曜日・日曜日・祝祭日


096-366-5020



















096-366-5020