情報更新日:2026年02月12日/広告有効期限:なし
表示閲覧回数(過去30日間):292
お急ぎの方はお電話からお気軽にどうぞ!
096-366-5020 営業時間 / 月〜金 9:30〜17:30 定休日 / 土曜日・日曜日・祝祭日
>物件詳細情報
| 基本情報 | |
|---|---|
| 物件番号 | 111111111194 |
| 店舗形態 | 事務所, 一棟貸し, 店舗 |
| オススメ業種 | 事務所, 塾・学校・教育関係, 物販関係 |
| 物件名 | 春日6丁目店舗 |
| 物件の状態 | 空き |
| 引越し時期 | 即 |
| 契約形態と期間 |
普通契約期間:2年間 |
| 所在地・交通 | |
|---|---|
| 所在地 | 熊本県熊本市西区春日6-18-7 |
| 交 通1 | 九州新幹線熊本駅 徒歩10分 |
| 交 通2 | 産交バス田崎 徒歩3分 |
| 賃料 | |
|---|---|
| 賃 料 | 154,000円(税込) |
| 敷 金 |
3ヶ月 |
| その他 | |
|---|---|
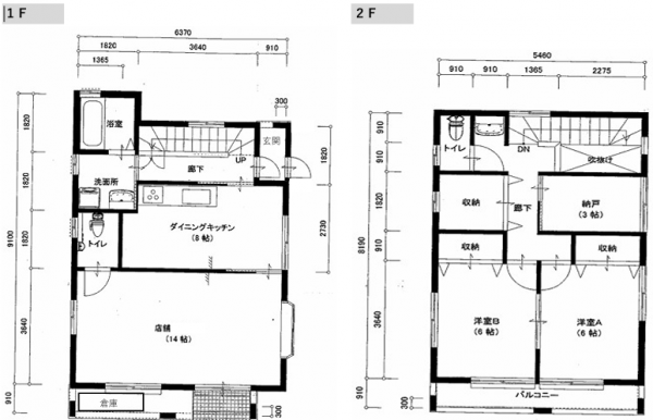
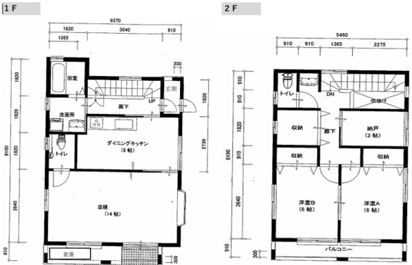
| 備考 | 専用設備が整った一棟貸し物件で、事務所・教室・物販など多用途に対応!快適なPタイル床で来客対応にも最適。看板設置も可能です♪ ※利用時間【9時~22時】の制限あり。 |
| 建物 | |
|---|---|
| 建物構造 | 木造 |
| 建物階建て |
地上2階 |
| 施工年月 | 2012(平成24)年 07月 |
| 募集物件の階数 | 地上 1・2階 |
| 契約面積 | 96.46m2(29.18坪) |
| 用途地域 | 近商地域 |
| 設備 | |
|---|---|
| 水道 | 公営 |
| 下水道 | 公共下水 |
| ガス | オール電化 |
| エレベータ | 無 |
| エアコン | 有 |
| トイレ | 有/専用 |
| 給湯室 | 有/専用 |
| キッチン | 有/専用 |
| ネット環境 | 無 |
| 床仕様 | Pタイル |
| セキュリティ | 無 |
| 利用時間 | 時間制限有 |
| シャッター | 有/手動 |
| 照明設備 | 有 |
| 内装業者指定 | 有 |
| 駐車場 | |
|---|---|
| 状 況 | 空有無料 |
| 空き台数 | 3台 |
| 取引情報 | |
|---|---|
| 取引態様 | 媒介 |
| 客付 | 可 |
この物件をチェックした人はこんな物件も見ています
- 上熊本駅徒歩圏内でビジネスを格上げ!多目的利用可能な広々空間!

熊本県熊本市西区上熊本1-10-21
264.93m2(80.14坪)
1,100,000円(税込)
- 国体道路沿いの貸地!

熊本県熊本市中央区帯山7-23-52
144.71m2(43.77坪)
140,000円(税込)
- 黒髪6丁目貸地!賃料格安☆プレハブの設置相談可!

熊本県熊本市中央区黒髪6-4-19
596m2(180.29坪)
170,000円(税込)
- 南区の魅力的な1階店舗で、あなたの夢を形にしよう★

熊本県熊本市南区並建町263
110.85m2(33.53坪)
107,800円(税込)
- 店舗としてもオフィスとしても、自由自在に使える広大な空間

熊本県山鹿市宗方通-106
226.86m2(68.63坪)
275,000円(税込)
今日チェックした物件
お急ぎの方はお電話からお気軽にどうぞ!
096-366-5020 営業時間 / 月〜金 9:30〜17:30 定休日 / 土曜日・日曜日・祝祭日


096-366-5020



















096-366-5020