情報更新日:2026年05月08日/広告有効期限:なし
表示閲覧回数(過去30日間):70
お急ぎの方はお電話からお気軽にどうぞ!
096-366-5020 営業時間 / 月〜金 9:30〜17:30 定休日 / 土曜日・日曜日・祝祭日
>物件詳細情報
| 基本情報 | |
|---|---|
| 物件番号 | 111111111934 |
| 店舗形態 | 店舗, 事務所 |
| オススメ業種 | 医療関係, 塾・学校・教育関係, 事務所, サービス業 |
| 物件名 | ライズ光の森 1Fテナント |
| 物件の状態 | 建設中 |
| 引越し時期 | 相談 |
| 契約形態と期間 |
普通 |
| 所在地・交通 | |
|---|---|
| 所在地 | 熊本県菊池郡菊陽町光の森7-44-5 |
| 交 通1 | 豊肥本線光の森駅 徒歩1分 |
| 交 通2 | 熊本電鉄バス光の森駅 徒歩1分 |
| 賃料 | |
|---|---|
| 賃 料 | 748,000円(税込) |
| 敷 金 |
敷金未定 |
| その他 | |
|---|---|
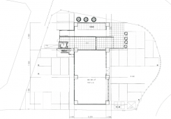
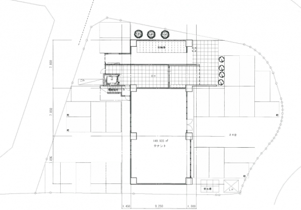
| 備考 | 光の森駅から徒歩1分という圧倒的な好立地。12階建て新築マンション1階のテナント区画が、7月末完成予定です。オフィスや店舗など幅広い業種にご活用いただけます。詳細や内覧ご希望の際は、お気軽にお問い合わせください。※外観・図面等については現段階でのイメージになります。駐車台数は要相談となります。 |
| 建物 | |
|---|---|
| 建物構造 | 鉄筋コンクリート造 |
| 建物階建て |
地上12階 |
| 施工年月 | 2026(令和8)年 07月 |
| 募集物件の階数 | 地上 1階 |
| 契約面積 | 149.94m2(45.36坪) |
| 用途地域 | 近商地域 |
| 駐車場 | |
|---|---|
| 状 況 | 空有 |
| 駐車料金 | 8,800円(税込) |
| 空き台数 | 20台 |
| 取引情報 | |
|---|---|
| 取引態様 | 媒介 |
| 客付 | 不可 |
この物件をチェックした人はこんな物件も見ています
- 契約開始より2年間は賃料減額になりました!初期ランニングコストを圧縮できます!!

熊本県山鹿市宗方通-106
226.86m2(68.63坪)
225,000円(税込)
- 黒髪6丁目貸地!賃料格安☆プレハブの設置相談可!

熊本県熊本市中央区黒髪6-4-19
596m2(180.29坪)
170,000円(税込)
- 国体道路沿いの貸地!

熊本県熊本市中央区帯山7-23-52
144.71m2(43.77坪)
140,000円(税込)
- 南区の魅力的な1階店舗で、あなたの夢を形にしよう★

熊本県熊本市南区並建町263
110.85m2(33.53坪)
107,800円(税込)
- ★★こだわりの室内インテリア★★ 美容関係にお勧め!

熊本県熊本市南区刈草1-5-6
65.39m2(19.78坪)
143,000円(税込)
今日チェックした物件
お急ぎの方はお電話からお気軽にどうぞ!
096-366-5020 営業時間 / 月〜金 9:30〜17:30 定休日 / 土曜日・日曜日・祝祭日


096-366-5020














096-366-5020